|
|
在檢修作業中,會遇到很多電機軸與泰興減速機輸入軸接手校同軸度問題,為了又快又好地完成這項工作,下面詳細講解同軸度校正方法。
電機與泰興減速機接手校同軸度,大多數情況下,都是減速機不動,校電機。在設備安裝時,一般電機底座都會校水平的,所以電機底座的不水平誤差是較小的。
因此校同心度時,為了簡便和縮短校對時間,只要考慮電機軸與泰興減速機輸入軸中心線不等高和電機軸在水平面內的歪斜即可。下面就這種情況,講解校同軸度的方法。
(即使電機底座水平誤差稍偏大,造成接手上、下開端稍超標,即電機不水平,也可在精校時,微調糾正,因此可先不考慮)
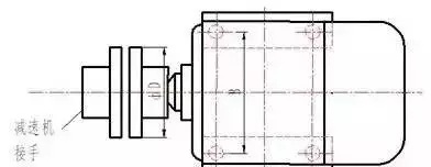
步驟一:目測和用鋼皮尺比對接手前、后邊,初步校正。
如圖1,俯視圖。
目的:電機、泰興減速機接手前、后初步對齊,并減少開端誤差,為下一步打百分表校電機中心高,減少誤差。
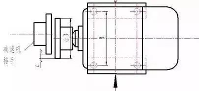
初步校正后的俯視圖,如圖2。
圖1
圖2
步驟二:主視圖,如圖3,校對電機接手中心線與減速機接手中心線等高。
初步校正后的主視圖,如圖3。
圖示安裝百分表,旋轉泰興減速機接手一圈,記下百分表在上、下兩點處讀數(若減速機旋轉不方便,則把磁座裝在電機接手上,旋轉電機軸一圈),計算百分表上、下兩點的讀數差ΔL1,然后,在電機四個地腳螺絲處,同時增加ΔL1/2+(0.10~0.15)厚墊片,其中0.10~0.15mm為經驗值,該經驗值是補償打百分表時,電機地腳螺絲未緊固造成的。
墊完墊片后,如圖4。
圖3

圖4
在剛性接手或接手補償性能差的情況下,且設備高速運轉,減速機或軸承座運行與停止狀態溫度相差較大的場合,在加墊片時,還要根據經驗或計算減速機或軸承座運行時,因溫度的升高,導致座子升高,要把這個升高量也加上。
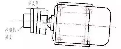
步驟三:俯視圖5,電機接手前、后方向校正(校開端)。
在墊墊片過程中,電機相對于減速機接手會產生前、后方向的歪斜和錯位,如圖5。
圖5
圖6
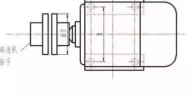
首先用鋼皮尺把接手前、后對齊,對齊后的接手如圖6。用塊規或游標卡尺,測接手前、后開端,根據相似三角形原理,計算h2=(b2-b1)A/∮D,電機F點處不動,按圖示E點處用力緩慢移動電機,讀百分表數值,到百分表指針壓縮h2后,停止移動。
移動完后,見圖7。
圖7
步驟四:重新打百分表,測接手開端,確認電機、減速機接手同軸度,是否在允許范圍內。一般情況下會在許可范圍內。若在,則同軸度校對全部結束。
若不在,也只是微調。若接手上、下開端不在允許范圍內,則電機接手在垂直方向要校水平。見圖8。用塊規或游標卡尺,測接手上、下開端,根據相似三角形原理,計算h1=(a2-a1)A/∮D,在E點處墊h1后,見圖9。
圖8
圖9
若接手前、后未對齊,則可按照百分表前、后兩點讀數差ΔL2的一半,平移電機即可,見圖10。平移后見圖11。至此,同軸度校對全部結束。
圖10
圖11